Погрузитесь в уют и комфорт этой очаровательной квартиры, идеально расположенной на тихой и удобной улице Vía América. Благодаря продуманной планировке, которая обеспечивает максимальное удобство и адаптируется под любые ваши потребности, этот дом ждёт вас, чтобы вы начали новый этап своей жизни — наполненный счастьем и благополучием.
Описание:
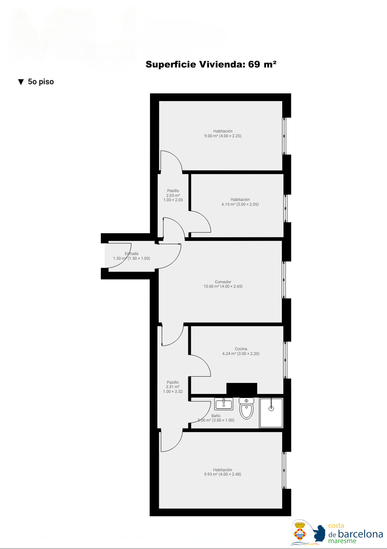
- Одна двуспальная спальня и две одиночные спальни — идеально для семьи или организации рабочего пространства.
- Полностью оборудованная ванная комната.
- Отдельная кухня, готовая к воплощению ваших лучших кулинарных идей.
- В здании есть лифт для вашего комфорта.
А также — вы будете окружены всей необходимой инфраструктурой:
- Остановки автобусов
- Торговые центры
- Медицинские учреждения
- Супермаркеты
Отличная транспортная доступность: рядом железнодорожная станция и выезд на автостраду Mataró N, всего в 30 минутах от Барселоны!
Для семей предусмотрены детские игровые площадки — идеальное место для малышей. Что ещё можно пожелать? Здесь есть всё. Не упустите эту уникальную возможность!
Мы поможем вам получить финансирование до 100%!
Ref. HG-MAT-ROC-10 Цена: 135.000€
Характеристики
Тип операции: Продажа;
Тип недвижимости: Квартира;
Район / Город: Rocafonda / Матаро;
Полезная площадь: 60 м²;
Общая площадь: 69 м²;
Состояние: Готова к заселению;
Спальни: 3;
Санузлы: 1;
Год постройки: 1963;
Этаж: 4;
Фасад: Наружный;
Вид: На улицу;
Режим продажи: Свободный;
Лифт✓;
Наружные помещения✓.
Инфраструктура
— Рядом зелёные зоны;
— Рядом автобусные остановки;
— Рядом торговые центры;
— Рядом школы;
— Железная дорога;
— Рядом детские площадки.
Энергетическая эффективность
Категория выбросов: В процессе оформления;
Категория энергопотребления: В процессе оформления.




























































